
CAKE US Headquarters
Location: Venice, CA
Date: 2022
Category: Commercial Showroom/Office
Size: 4,000sf
Services: Design, Project Management, Construction Documentation, Permitting, Bidding, Construction Administration
Client: CAKE 0 Emissions
Photography: Eric Staudenmaier
Featured in Wallpaper* (2023)
Dezeen Design Awards Longlist (2023)
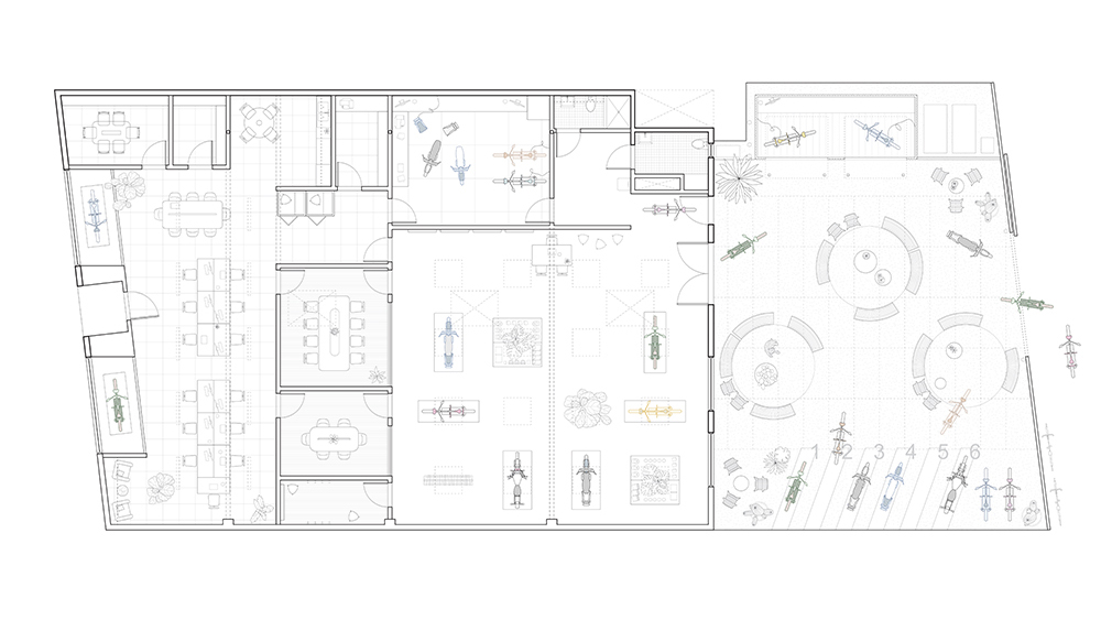
The US flagship headquarters for CAKE 0 Emissions, an innovative fully-electric motorcycle company based in Stockholm, Sweden. The adaptive reuse project is equal parts showroom, event space, workshop, service area, test-ride yard, and offices. In close collaboration with the client’s branding team, the company’s core values and commitment to innovative transportation technology, clean energy, and material performance inspired the design approach that prioritizes sustainability, flexibility, and long-term functionality.
The 1500sf showroom effectively subdivides the warehouse through the use of reflection - glossy tile walls, frameless glass storefronts, white painted brick, and a custom colored epoxy floor coating. To amplify the sense of enclosure against the existing industrial ceiling, a suspended grid of oversized light pendants forms a glowing datum.




Upon leaving the crisp, bright showroom and transitioning to the auxiliary spaces such as meeting rooms, office workspace, kitchenette, and lounges, one is immersed in a soft and warm material palette that celebrates Scandinavian design - recycled textile flooring from Bolon (Sweden), drapery from Kvadrat (Denmark), furniture from HAY (Denmark), and a grassy green carpet selected by the client to represent the Swedish landscape. The existing masonry walls are left exposed and natural in these spaces and large storefront lightboxes bring light deep into the office areas, where the sun casts a shadow of the bikes across the interior.
The rear of the building opens onto a quiet alleyway which is used for test riding the bikes. The adjacent parking lot was transformed into an outdoor lounge where customers can try on gear and take the bikes for a spin. The test ride bikes are stored in an upcycled and re-branded shipping container.
